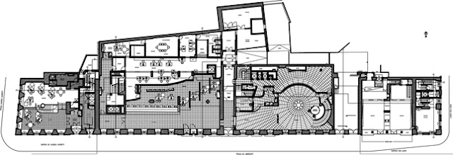
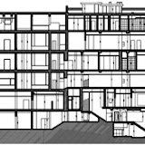
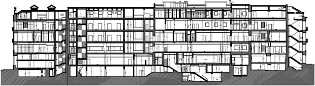
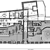
Trabalho: Levantamento Arquitectónico do Palácio Das Cardosas
Cliente: Intergaup
Local: Porto
Ano: 2001
Comments on this entry are closed.
Comments on this entry are closed.