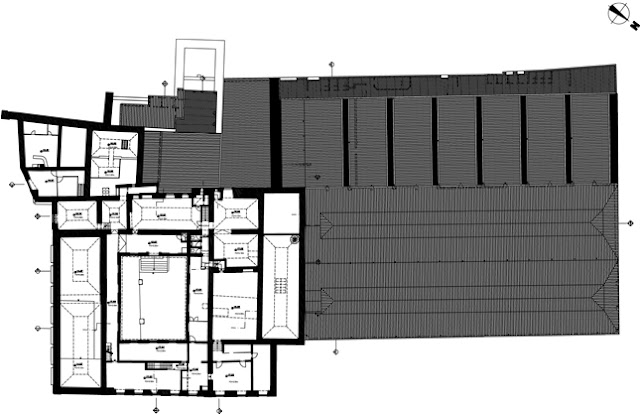
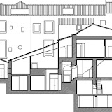
Trabalho: Levantamento Arquitectónico do Palácio Almada Carvalhais
Cliente: Arqº Souto de Moura
Local: Lisboa
Ano: 2009
Comments on this entry are closed.
Comments on this entry are closed.