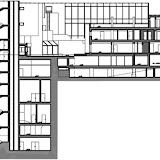
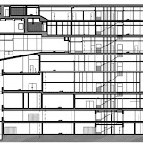
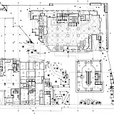
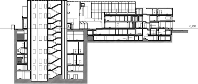
Trabalho: Levantamento Arquitectónico do Hotel Porto Palácio
Cliente: Sonae
Local: Porto
Ano: 2002
Comments on this entry are closed.
Comments on this entry are closed.