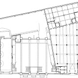
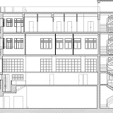
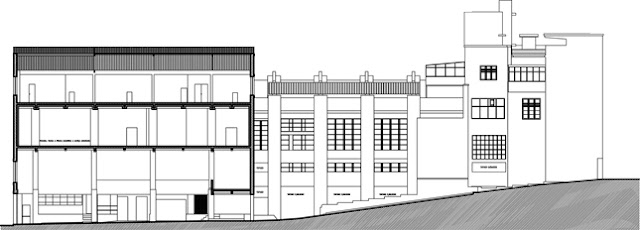
Trabalho: Levantamento Arquitectónico da Bolsa do Pescado
Cliente: Arqº José Carlos Cruz
Local: Porto
Ano: 2001
Comments on this entry are closed.
Comments on this entry are closed.